立即預約 立即預約
免費定制整裝家居

免費定制整裝家居

一站置家 全程無憂 一省到底
hide.png

當前位置: 首頁 > 裝修案例效果圖 > 聽雨觀瀾

聽雨觀瀾 480平 新古典風格效果圖

收藏
案例風格 新古典 案例戶型 二居 案例面積 480平米
樓盤名稱 聽雨觀瀾 設計師 林鳳設計師 案例類型 改善性住宅

設計理念:該案設計采用迷情法爾賽設計風格,藝術與時間的雕琢,華貴與空間的妝點,靈魂與人生的交錯,締造出一個藝術殿堂。對原有建筑結構的理解與修改,利用現有的結構空間加以修飾,使其建筑結構更加豐富多彩。穹頂壁畫與造景的窗畫使空間的得到了藝術的升華。

客廳
第1張
第2張
餐廳
第1張
臥室
第1張
衛(wèi)生間
第1張
廚房
第1張
休閑區(qū)
第1張
第2張
第3張
戶型圖
第1張
第2張
  • 案例詳情

聽雨觀瀾-480平-迷情法爾賽風格-客廳1.jpg 聽雨觀瀾-480平-迷情法爾賽風格-客廳2.jpg

客廳的設計是整個方案的重點,穹頂的造型使客廳空間更顯大氣,壁畫的選擇更加的凸顯了空間藝術氛圍,環(huán)抱似的家具選擇使客廳人置身在藝術殿堂的環(huán)抱之中,羅馬柱式的選擇更使柔和的頂棚空間更具線條層次感,墻面凹凸的區(qū)域分割是空間更加立體,也使展示的繪畫區(qū)更加豐富。

聽雨觀瀾-480平-迷情法爾賽風格-餐廳.jpg

半躍的原始建筑結構使餐廳空間原本就具備了其他房型所不具備的空間層次感,設計師更是運用墻面連拱的石膏造型與頂棚豐富層次的石膏線性使餐廳空間層次上更加豐富多彩,墻面壁畫與頂棚壁畫使餐區(qū)得到了更好室內外空間效果的延伸。

聽雨觀瀾-480平-迷情法爾賽風格-主臥室.jpg

頂棚層次豐富石膏線造型與墻面的造型良好的結合,使臥室空間裝飾性更強,洛可可的裝飾效果更突出了女性的柔和,硬朗的羅馬柱造型是使主臥空間剛柔相繼,灰藍的布藝與實木地板形成的強烈的冷暖對比,使臥室的色彩空間更具層次。頂棚壁畫更是點睛的裝飾,使人自身在藝術的空間里。

聽雨觀瀾-480平-迷情法爾賽風格-衛(wèi)生間.jpg

古樸的瓷磚鋪貼是空間更具時代感,更顯古樸氣息,凹凸的衛(wèi)浴柜設計使空間層次感更強,仿古瓷磚與簡潔的石膏吊頂使空間古樸氣息的韻味更濃。

聽雨觀瀾-480平-迷情法爾賽風格--廚房.jpg

廚房柜體做舊的木色顏色選擇更顯,空間的古樸大氣,木梁的運用是墻面的顏色得到了延伸,復古的墻磚更加了凸顯了櫥柜的古樸大氣。

聽雨觀瀾-480平-迷情法爾賽風格-品酒區(qū).jpg 聽雨觀瀾-480平-迷情法爾賽風格-影音室2.jpg 聽雨觀瀾-480平-迷情法爾賽風格-影音室.jpg

設計師運用立柱造型把品酒區(qū)設計分為儲酒區(qū)與品酒交流區(qū),紅酒的儲酒區(qū)與洋酒的展示區(qū),使其功能與裝飾性更好的結合到了一起,文化石的運用是更增添了品酒區(qū)的氛圍感。影音室的設計上更注重的就是氛圍與音響,設計師選擇了相對獨立的地下室下沉區(qū),獨立性強不會影響其余空間,裝飾折疊門更好的使品酒區(qū)與影視室更好的聯系到了一起,壁畫樣式的折疊門更起到了很好的裝飾性,燈光的氛圍襯托也使空間娛樂性更濃。

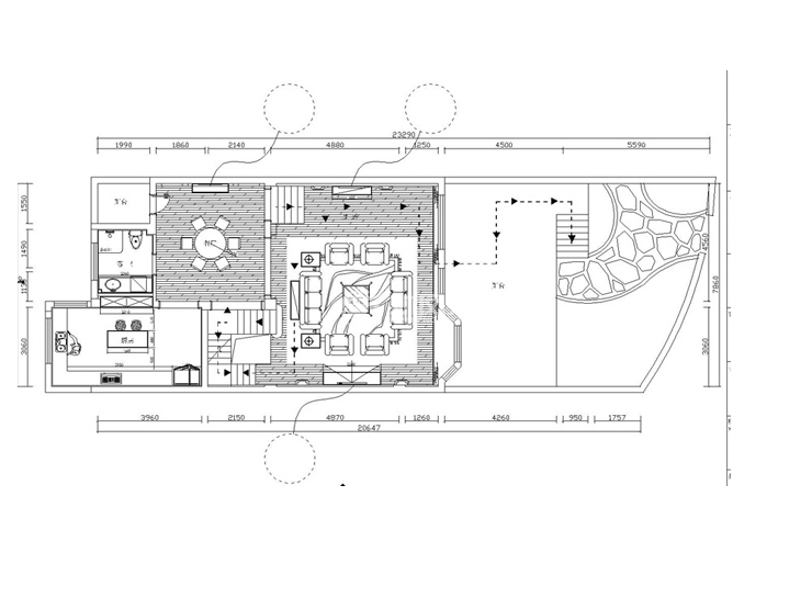
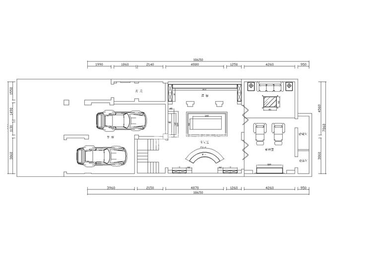
聽雨觀瀾-480平-迷情法爾賽風格-一樓平面圖.jpg 聽雨觀瀾-480平-迷情法爾賽風格--地下室平面圖.jpg

案例設計師

林鳳設計師

設計師:林鳳設計師

從業(yè)時間:13年

設計理念:設計是用心雕琢的藝術品

預約設計師

算算你家裝修多少錢

報名即享豐厚贈品,享半價裝修

免費報價
咨詢熱線:400-656-9909
20190221103704574636.jpg

精品設計案例

20180612134930523248.jpg 服務號二維碼.jpg